Get ready to stretch out and relax in Legacy’s incredibly spacious, taller, and wider doublewide homes—perfect for those who want to maximize comfort and style. Our doublewide floorplans redefine affordable luxury with expansive living spaces, offering plenty of room for your family to spread out. Whether you’re looking for a home that’s furniture-friendly with multiple bedrooms or an elegant retreat that doesn’t sacrifice on quality, Legacy’s doublewides are built to impress. Experience the freedom of homeownership with the most spacious and stylish doublewide manufactured homes on the market. Why choose anything less? Explore our best-selling doublewide homes today and discover why Legacy is the leader in the industry!
Find A Dealer – Legacy Housing Corporation
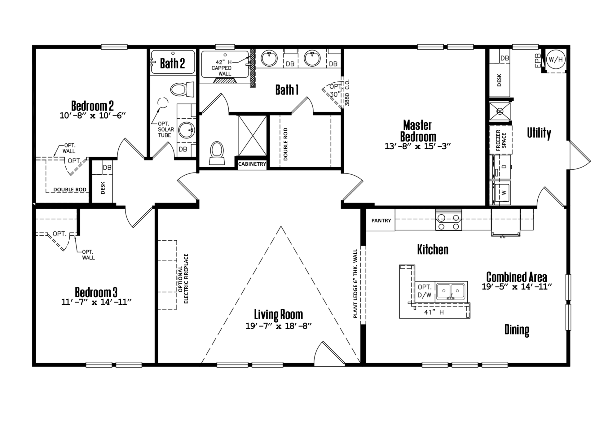
Heritage Standard Features:
– Copyrighted © Furniture-Friendly Floorplans
– American Made Single-Piece (Not welded) I-Beam Frame
– Detachable Hitch
– Full-Length Outriggers / Wall Supports
– 2×6 Floor Joist 16” O.C.
– Tongue & Groove O.S.B. Floor Decking
– Vinyl Siding
– Dormers w/ Columns per Print on Doublewides
– 11-11-31 Insulation
– Vinyl Thermal Pane Windows
– Steel In-Swing Front Door w/ Deadbolt
– Steel Out-Swing Rear Door w/ Deadbolt
– Singlewides: Composition Shingle Roof – 4/12 Pitch
– Doublewides: Composition Shingle Roof – 3/12 Pitch
– 16’ Singlewides: Octagon Vault 8’2” at Peak Vaulted Ceilings Throughout
– 32’ Doublewides: 9’ 0” at Peak Vaulted Ceilings Throughout
– 16’ Singlewides: 15’ Interior Floor Width
– 32’ Doublewides: 30’ Interior Floor Width
– Tapeless Ceilings w/ Rolled Texture
– Vinyl Flooring Throughout
– Raised Panel Interior Doors w/ Metal Pulls
– Decorative Valances Throughout, Living Room, Master Bedroom, Drapery in Doublewides
– 2″ Blinds Throughout
– Smart Doorbell
– Silent Rocker Electrical Switches
– Choose Colors from a variety of Wallboards, Countertops, Cabinets, and Flooring
– Decorative Residential Vinyl Wallboards (Not Paper)
– Post-Form Roll-Top Countertops w/ Bullnose Front Edge and Integrated Backsplash
– Plentiful Cabinets (Including over Refrigerator)
– European-Inspired Raised Panel Vacuum-Sealed Hi-Definition Cabinet Doors (Not Paper)
– 3/4” Vinyl-Wrapped Cabinet Stiles (Not Paper)
– Center Shelves w/ Vinyl Front Edge Banding in Base Cabinets
– Hidden Cabinet Door Hinges
– Stainless-Steel Kitchen Sink
– Kitchen Pantry (Most Models)
– LED Light(s) in Kitchen
– Ceramic Sinks w/ Metal Faucets In All Bathrooms
– Elongated Commodes
– Towel Bars and Tissue Holders in Bathrooms
– Medicine Cabinets and Drawers in all Master Baths (And Most 2nd Baths)
– Taupe Wire Shelving in Closets and above Washer/Dryer
– Satin Nickel Hardware
– 30-gallon Electric Water Heater in 2 Bedroom Homes
– 50-gallon Electric Water Heater in 3 Bedroom Homes
– Plumbed and Wired for Washer and Dryer
– 200-AMP Total Electric*
– Smoke Detectors Throughout
– Drip Edge
– Mirror Trim
* 100 Amp Total Electric with 1.5 – 2.25 Ton Mini-Split AC System
**Some options shown are upgrades or options we don’t currently offer at this time. See your local Legacy dealer for current standard features and current upgrade options.






































































